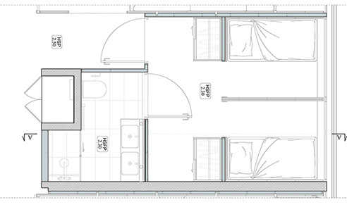
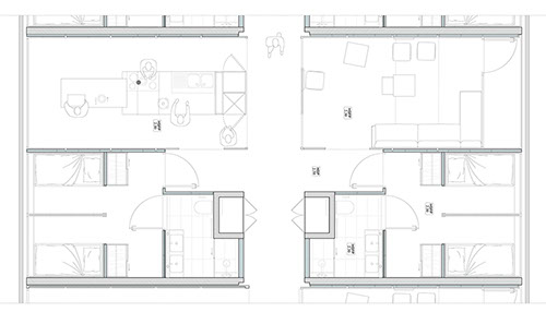
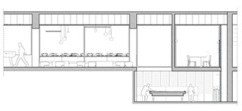
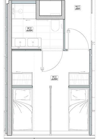
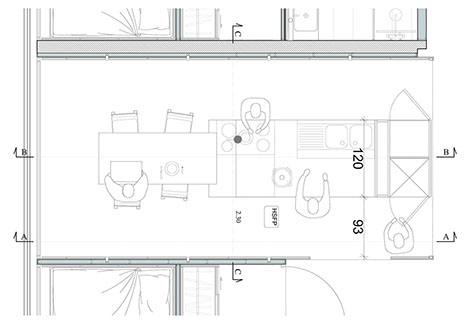
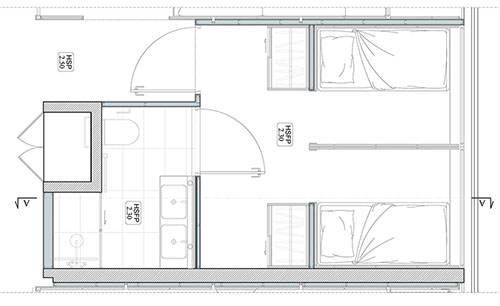
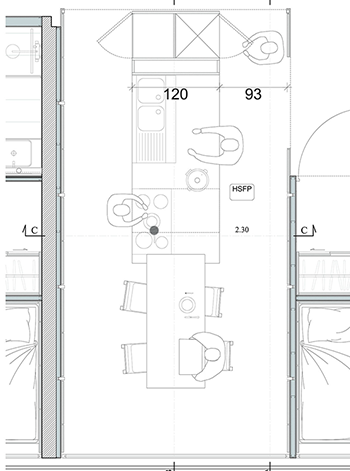
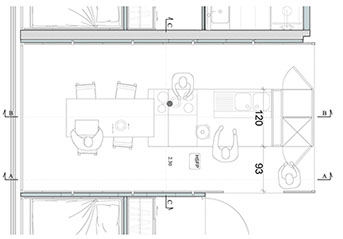
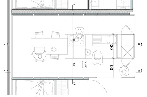
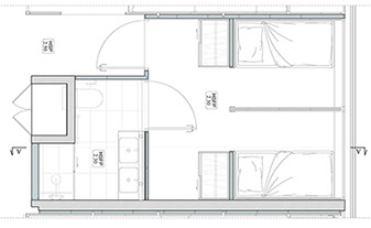
HEC PARIS ConceptplansLa population que nous trouvons à HEC est très diversifiée. Non seulement la moitié des étudiants sont étrangers, mais une grande partie provient également de province.Comment les nouveaux arrivant peuvent-ils s’intégrer à un si grand campus sans rien connaitre au territoire qui leur est mis à disposition?La démarche de ce projet est de favoriser une intégration progressive par le biais de groupes réduits, mais dans lesquels l’individu pourra trouver une place.Une fois que l'individu ayant pris ses marques, il sera plus facile pour lui de confronter à une masse plus grande crainte d’y disparaitre.InterventionCellules universitaire Espaces de travail Espaces de détente MobilierModule d'habitationCoupe RDCChambreCuisine